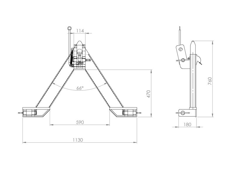
Armação (Cat.3) CE Aprovado

556.00  IVA incluído

Referência: S.127945

Categoria:

Cat. 3,
Bloqueio automático,
Centralizando rolos de localização,
Pinos incluídos,
Pino do elo inferior de substituição e conjunto de corrente S.23987.,
capacidade de carga: 1800Kg.
CE Aprovado

Informação adicional

Peso 55.00 kg

SOLICITAR ORÇAMENTO OU MAIS INFORMAÇÕES

Contact Form Demo